Préciser votre budget :
OK
Préciser les pièces :
OK
Préciser les chambres :
OK
Préciser la surface :
OK
Préciser la surface :
OK
Plus de critères
Retour aux annonces

A vendre Appartement 3 pièces Bras-Panon (97412) - Réunion

130 000 € FAI* soit 2 152 € /m²
miniature miniature miniature miniature miniature miniature
Empruntez aux meilleures conditionslogo meilleur taux

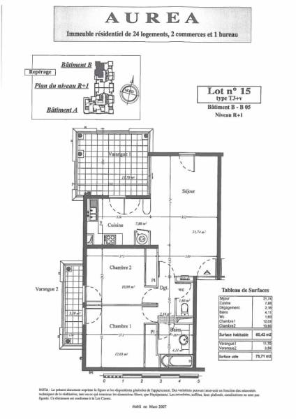
PRMI EXCLUSIVITÉ : APPARTEMENT 3 PIECES, 60.42M² habitables A BRAS PANON

/!\ EXCLUSIVITE PRMI / SPECIAL PRIMO-ACCEDANT ET INVESTISSEUR /!\ Nous vous proposons à la vente, cet appartement T3 de 75,71 m² (60,42 m² habitable) situé au 1er étage d'une résidence privée et sécurisée de Bras Panon. Ce bien comprend une cuisine aménagée et ouverte sur le séjour de 21,74 m², une varangue de 11,70 m², une salle de bain, un WC séparé ainsi que 2 chambres climatisées avec placard donnant toutes les 2 sur une petite varangue de 3,59 m². Dans le secteur de la Rivière des Roches, à mi-chemin entre Saint-André et Saint-Benoît, accès rapide à la 4 voies en 5 minutes. La résidence n'est qu'à 3 minutes à pied de l'école primaire Ma Pensée et le collège de Bras Panon et le lycée Paul Moreau sont à 3 minutes en voiture. Nombreux commerces à proximité : pizzeria, charcuterie, boulangerie, coiffeur, dentiste... Ce bien est vendu avec une place de parking et est actuellement loué à 683 euros CC. Taxe foncière : 1015 euros Charges de copropriété : 121 euros / mois Échéance du bail : 5/08/2027 Pour plus d'information sur ce bien, contactez Fabrice DALLEAU au [coordonnées réservées] ou par mail [coordonnées réservées]

Caractéristiques de cet appartement 3 pièces à vendre à Bras-Panon (97412)

  • Nombre de pièces : 3 pièces
  • Nombre de chambres : 2 chambres
  • Surface habitable : 60.42 m²
  • Référence de l'annonce : FDA7172
  • Prix de vente : 130 000 € FAI (Frais d'Agence Inclus)*
  • * Honoraires à la charge du vendeur
Empruntez aux meilleures conditionslogo meilleur taux

Cette annonce immobilière vous est proposée par :

PRMI Nord/Est

Ce bien vous intéresse ?
Contactez l'agence dès aujourd'hui...

En savoir plus sur l'agence PRMI Nord/Est

Cette agence immobilière propose à ce jour 48 biens à la vente sur Immodesiles.fr.

Vous pouvez consulter le barème d'honoraires de l'agence.

Autres appartements à vendre à Bras-Panon (97412), susceptibles de vous intéresser

une belle résidence privée comprenant 3 appartements 8 Appartement 5 pièces - Terrain 400 m² Bras-Panon (97412) 5 pièces, 140 m² hab., terrain 400 m² OFIM vous propose à la vente cette belle résidence privée située dans un endroit calme et recherché de BRAS PANON. Comprenant 3 appartements: - un T3 d'une surface d'environ 60 M2 pouvant être louer à 880€ - un T2 d'une surface d'environ 57 M2 déjà Loué à 880€ - un studio d'une sur... Réf. 618Ofim 330 000 € soit 2 357 € /m² 8 Appartement 4 pièces Bras-Panon (97412) 4 pièces, 3 chambres, 65 m² hab. Appartement T4 résidence sécurisée Bras panon - Delmonte-Bras Panon. Dans résidence calme et sécurisée ,proches des écoles ,commerces ,appartement de 65 m² de type T4 .varangue de 7.40 m² + 2 places de parking privative . Copropriété de 36 Lots ,charges de copropriété de 295€/trime... Réf. TAPP955672Delmonte Immobilier 120 800 € soit 1 858 € /m² appartement t3 en rez-de-chaussée avec grand jardin privatif dans résidence calme à bras-panon 8 Appartement 3 pièces - Terrain 90 m² Bras-Panon (97412) 3 pièces, 2 chambres, 62 m² hab., terrain 90 m² L'agence PRMI vous propose à la vente cet agréable appartement T3 situé en rez-de-chaussée dans la résidence sécurisée Ludisia, au coeur d'un secteur recherché de Bras-Panon, offrant un cadre de vie calme et pratique grâce à sa proximité immédiate des commodités, des établissements sco... Réf. FDA7416Prmi Nord/est 160 000 € soit 2 599 € /m² appartement bras panon 3 pièce(s) 69.04 m2 8 Appartement 3 pièces Bras-Panon (97412) 3 pièces, 2 chambres, 69 m² hab. /!\ EXCLUSIVITE PRMI / SPECIAL PRIMO-ACCEDANT ET INVESTISSEUR /!\ Nous vous proposons à la vente, cet appartement T3 de 83,42m² (69,04 m² habitables) situé au 1er étage d'une résidence privée et sécurisée de Bras Panon. Ce bien comprend une cuisine aménagée et ouverte sur le séjour de ... Réf. FDA7237Prmi Nord/est 140 000 € soit 2 028 € /m² 7 Appartement 3 pièces Bras-Panon (97412) 3 pièces, 2 chambres, 66 m² hab. VENTE d'un appartement T3 (66 m²) à Bras-Panon, idéal pour investissement locatif dans une belle résidence de standing. - À VENDRE : Appartement T3 à Bras-Panon, idéal pour un investissement locatif. Situé dans une belle résidence de standing, cet appartement de 66 m², construit en 2004, o... Réf. TAPP955836Citya Belvedere 110 000 € soit 1 667 € /m²