Préciser votre budget :
OK
Préciser les pièces :
OK
Préciser les chambres :
OK
Préciser la surface :
OK
Préciser la surface :
OK
Plus de critères
Retour aux annonces

A vendre Appartement 2 pièces Saint-Denis (97400) - Réunion

151 525 € FAI* soit 3 294 € /m²
miniature miniature miniature miniature miniature miniature
Empruntez aux meilleures conditionslogo meilleur taux

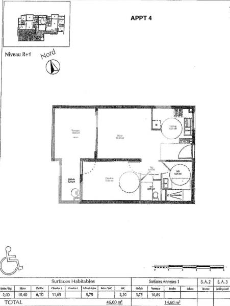
Appartement Saint Denis 2 pièce(s) 46 m2

L'agence Stéphane Plaza immobilier de Saint-Denis vous propose un T2 d'une superficie de 46m² situé au premier étage avec ascenseur, dans une résidence de standing sécurisée et proche de toute commodité, à Saint-Denis, Secteur Mongaillard ! Il se compose d'un espace cuisine, salle à manger, séjour et d'une chambre, d'une salle de bain avec douche à l'italienne et d'un WC indépendant ainsi que d'une grande varangue de 14,6m2 offrant un espace supplémentaire. Ne manquez pas cette opportunité. Contactez nous au [coordonnées réservées] . Prix du bien :151 525 euros FAI Honoraires à la charge du vendeur. Taxe foncière, estimée : 1135 euros Charges trimestrielles : 305.33 euros Mandat n° 141. Non soumis au DPE. Consommation énergétique primaire : non communiquée Consommation énergétique. Finale : non communiquée. Nombre de lots de copro : 24 dont 12 d'habitation. Pas de procédure en cours . Les informations sur le risque auxquels ce bien est exposé sont disponibles sur le site Géorisques : www.géorisques.gouv.fr Copropriété de 24 lots - dont 12 lots habitation. (Pas de procédure en cours). Charges annuelles : 1222.12 euros. DJIMMY MAILLOT (EI) Agent Commercial - Numéro RSAC : 802305813 - Saint-Denis.

Caractéristiques de cet appartement 2 pièces à vendre à Saint-Denis (97400)

  • Nombre de pièces : 2 pièces
  • Nombre de chambres : 1 chambre
  • Surface habitable : 46 m²
  • Référence de l'annonce : lot04-250
  • Prix de vente : 151 525 € FAI (Frais d'Agence Inclus)*
  • * Honoraires à la charge du vendeur
Empruntez aux meilleures conditionslogo meilleur taux

Cette annonce immobilière vous est proposée par :

STEPHANE PLAZA IMMOBILIER

97400 Saint-Denis

Ce bien vous intéresse ?
Contactez l'agence dès aujourd'hui...

En savoir plus sur l'agence STEPHANE PLAZA IMMOBILIER

Cette agence immobilière propose à ce jour 25 biens à la vente sur Immodesiles.fr.

Le barème d'honoraires de l'agence ne nous a pas été transmis.

Autres appartements à vendre à Saint-Denis (97400), susceptibles de vous intéresser

grand appartement t3 à saint-denis 3 Appartement 3 pièces Saint-Denis (97400) 3 pièces, 2 chambres, 79 m² hab. Découvrez ce T3 spacieux de 79,46 m², situé au 2ème étage avec ascenseur d’une résidence récente (2007) et sécurisée, à proximité immédiate des commodités et du centre-ville. L’appartement offre un grand séjour climatisé de 35,30 m² avec cuisine américaine, un espace de vie l... Réf. VAP10000172Fct Immobilier 271 950 € soit 3 442 € /m² 7 Appartement 3 pièces Saint-Denis (97400) 3 pièces, 68 m² hab. VENTE d'un appartement non meublé, idéalement situé sans ascenseur. - À VENDRE : Appartement avec grand jardin Découvrez cet appartement unique, idéalement situé dans un environnement propice à la vie saine et respectueuse de la planète. Ce bien, qui ne fait pas partie d'un ensemble immobi... Réf. TAPP940977Citya Saint-denis 185 000 € soit 2 721 € /m² appartement saint denis 3 pièce(s) 87.93 m2 2 Appartement 3 pièces Saint-Denis (97400) 3 pièces, 2 chambres, 88 m² hab. L'agence Stéphane Plaza Immobilier de Saint-Denis vous propose un appartement T3 neuf à venir au coeur du centre-ville de Saint Denis, à La Réunion. Il est intégré dans une copropriété de 11 logements seulement. Profitez d'un emplacement exceptionnel offrant un cadre de vie unique! Ce logeme... Réf. 224-lot103Stephane Plaza Immobilier 551 029 € soit 6 267 € /m² t1 a vendre sur saint denis pour investisseurs 5 Appartement 1 pièce Saint-Denis (97400) 1 pièce, 21 m² hab. SAINT DENIS - LA TRINITÉ Emplacement : 20 rue de l'inde Sur la résidence quartier latin, composée de 134 lots dont 71 appartements à usage d'habitation. A quelques mètres du parc de la trinité. Dans la résidence "quartier latin", un studio de 21.32 m² environ , non climatisé Bail meub... Réf. 4859Guy Hoquet Saint-denis 71 000 € soit 3 330 € /m² vend  studio meublé  t1 de 27m² + jardin sur  bellepierre 5 Appartement 1 pièce - Terrain 780 m² Saint-Denis (97400) 1 pièce, 8 chambres, 27 m² hab., terrain 780 m² VENDRE Studio Meubl avec Jardin sur Bellepierre Opportunit Idale pour InvestisseurDans un secteur calme et recherch, dcouvrez ce studio meubl dune surface de 27m de SH , situ en rez-de-jardin dune rsidence bien entretenue. Ce bien rare bnficie dun jardin privatif denviron 20 m, un atout majeur p... Réf. 6491Teka Immobilier 93 000 € soit 3 444 € /m²