Préciser votre budget :
OK
Préciser les pièces :
OK
Préciser les chambres :
OK
Préciser la surface :
OK
Préciser la surface :
OK
Plus de critères
Retour aux annonces

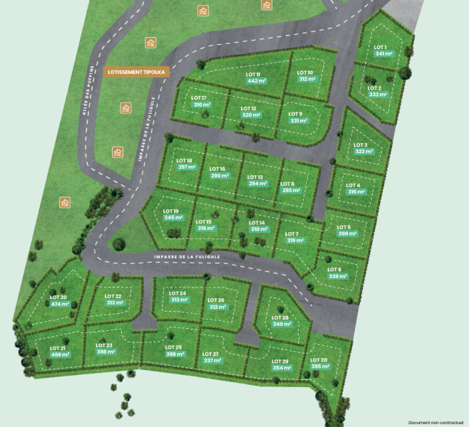
A vendre Terrain 319 m² Saint-Paul (97460) - Réunion

190 000 € FAI* soit 596 € /m²
miniature miniature miniature
Empruntez aux meilleures conditionslogo meilleur taux

A VENDRE - PARCELLE VIABILISÉE DE 319 M2 À MARIE CAZE, LA PLAINE SAINT PAUL

Entre Savanna et la Plaine Saint Paul, CBo Territoria développe au coeur du nouveau Quartier de Marie Caze, le lotissement Zoiseau Blanc.Découvrez ces parcelles viabilisées et prêtes à bâtir, à proximité du lycée Saint-Paul IV, du CHOR et des commerces de proximité, et devenez propriétaire dans un environnement privilégié et résidentiel de l'ouest.Nous vous proposons cette parcelle de 319 m2 qui n'attend plus que votre future maison.
Prix de vente : 190 000 € FAI TTC Prix net vendeur : 179 693 € TTC Honoraires : 10 308 € TTC à la charge du vendeur
Les informations sur les risques auxquels ce bien est exposé sont disponibles sur le site Géorisques : www.georisques.gouv.fr

Caractéristiques de ce terrain à vendre à Saint-Paul (97460)

  • Surface habitable : 319 m²
  • Surface du terrain : 319 m²
  • Référence de l'annonce : 759-07
  • Prix de vente : 190 000 € FAI (Frais d'Agence Inclus)*
Empruntez aux meilleures conditionslogo meilleur taux

Cette annonce immobilière vous est proposée par :

L'AGENCE BY CBO

97438 Sainte-Marie

Ce bien vous intéresse ?
Contactez l'agence dès aujourd'hui...

En savoir plus sur l'agence L'AGENCE BY CBO

Cette agence immobilière propose à ce jour 95 biens à la vente sur Immodesiles.fr.

Vous pouvez consulter le barème d'honoraires de l'agence.

Autres terrains à vendre à Saint-Paul (97460), susceptibles de vous intéresser

a vendre terrain 300m² centre ville saint paul, ile de la reunion 5 Terrain 1 pièce 300 m² Saint-Paul (97460) 1 pièce, 5 chambres, terrain 300 m² INGAR MOHAMMAD VOUS PROPOSE A VENDRE UN TERRAIN PLAT DE 300M TRS BIEN SITUE DANS LE CENTRE VILLE DE SAINT PAUL , SUR L'ILE DE LA REUNION, PROCHE DE TOUTES COMMODITS. Sur cette parcelle situe en Zone U1C vous pourrez construire jusqu 4 tages + les combles (R+4+ Combles), la totalit du terrain est co... Réf. 6359Teka Immobilier 358 450 € soit 1 195 € /m² a vendre - grande parcelle viabilisée de 347 m2 à marie caze, la plaine saint paul 5 Terrain 347 m² Saint-Paul (97460) terrain 347 m² Entre Savanna et la Plaine Saint Paul, CBo Territoria  développe au coeur du nouveau Quartier de Marie Caze, le lotissement Les Zirondelles. Découvrez ces parcelles viabilisées et prêtes à bâtir, à proximité du lycée Saint-Paul IV, du CHOR et des commerces de proximité, et devenez propriÃ... Réf. 751-19L'agence By Cbo 213 000 € soit 614 € /m² a vendre - grande parcelle viabilisÉe de 310 m2 À marie caze, la plaine saint paul 2 Terrain 310 m² Saint-Paul (97460) terrain 310 m² Entre Savanna et la Plaine Saint Paul, CBo Territoria développe au coeur du nouveau Quartier de Marie Caze, le lotissement Zoiseau Blanc.Découvrez ces parcelles viabilisées et prêtes à bâtir, à proximité du lycée Saint-Paul IV, du CHOR et des commerces de proximité, et devenez propriétair... Réf. 759-14L'agence By Cbo 210 000 € soit 677 € /m² a vendre - parcelle viabilisée de 304 m2 à marie caze, la plaine saint paul 4 Terrain 304 m² Saint-Paul (97460) terrain 304 m² Entre Savanna et la Plaine Saint Paul, CBo Territoria  développe au coeur du nouveau Quartier de Marie Caze, le lotissement Les Zirondelles. Découvrez ces parcelles viabilisées et prêtes à bâtir, à proximité du lycée Saint-Paul IV, du CHOR et des commerces de proximité, et devenez propriÃ... Réf. 751-33L'agence By Cbo 198 000 € soit 651 € /m² a vendre - parcelle viabilisÉe de 316 m2 À marie caze, la plaine saint paul 2 Terrain 316 m² Saint-Paul (97460) terrain 316 m² Entre Savanna et la Plaine Saint Paul, CBo Territoria développe au coeur du nouveau Quartier de Marie Caze, le lotissement Zoiseau Blanc.Découvrez ces parcelles viabilisées et prêtes à bâtir, à proximité du lycée Saint-Paul IV, du CHOR et des commerces de proximité, et devenez propriétair... Réf. 759-04L'agence By Cbo 210 000 € soit 665 € /m²