Préciser votre budget :
OK
Préciser les pièces :
OK
Préciser les chambres :
OK
Préciser la surface :
OK
Préciser la surface :
OK
Plus de critères
Retour aux annonces

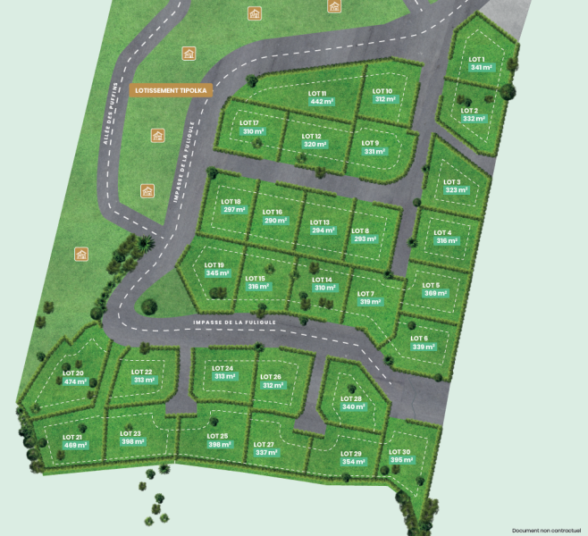
A vendre Terrain 442 m² Saint-Paul (97460) - Réunion

320 000 € FAI* soit 724 € /m²
miniature miniature miniature miniature
Empruntez aux meilleures conditionslogo meilleur taux

A VENDRE - PARCELLE VIABILISÉE DE 442 M2 À MARIE CAZE, LA PLAINE SAINT PAUL

Entre Savanna et la Plaine Saint Paul, CBo Territoria développe au coeur du nouveau Quartier de Marie Caze, le lotissement Zoiseau Blanc.Découvrez ces parcelles viabilisées et prêtes à bâtir, à proximité du lycée Saint-Paul IV, du CHOR et des commerces de proximité, et devenez propriétaire dans un environnement privilégié et résidentiel de l'ouest.Nous vous proposons cette parcelle de 442 m2 qui n'attend plus que votre future maison.
Prix de vente : 320 000 € FAI TTC Prix net vendeur : 302 640 € TTC Honoraires : 17 360 € TTC à la charge du vendeur
Les informations sur les risques auxquels ce bien est exposé sont disponibles sur le site Géorisques : www.georisques.gouv.fr

Caractéristiques de ce terrain à vendre à Saint-Paul (97460)

  • Surface habitable : 442 m²
  • Surface du terrain : 442 m²
  • Référence de l'annonce : 759-11
  • Prix de vente : 320 000 € FAI (Frais d'Agence Inclus)*
Empruntez aux meilleures conditionslogo meilleur taux

Cette annonce immobilière vous est proposée par :

L'AGENCE BY CBO

97438 Sainte-Marie

Ce bien vous intéresse ?
Contactez l'agence dès aujourd'hui...

En savoir plus sur l'agence L'AGENCE BY CBO

Cette agence immobilière propose à ce jour 93 biens à la vente et 1 bien à la location sur Immodesiles.fr.

Vous pouvez consulter le barème d'honoraires de l'agence.

Autres terrains à vendre à Saint-Paul (97460), susceptibles de vous intéresser

a vendre - parcelle viabilisÉe de 341 m2 À marie caze, la plaine saint paul 2 Terrain 341 m² Saint-Paul (97460) terrain 341 m² Entre Savanna et la Plaine Saint Paul, CBo Territoria développe au coeur du nouveau Quartier de Marie Caze, le lotissement Zoiseau Blanc. Découvrez ces parcelles viabilisées et prêtes à bâtir, à proximité du lycée Saint-Paul IV, du CHOR et des commerces de proximité, et devenez propriétai... Réf. 759-01L'agence By Cbo 230 000 € soit 674 € /m² a vendre - parcelle de 386m2 dans le lotissement ti polka à marie caze 3 Terrain 386 m² Saint-Paul (97460) terrain 386 m² Entre Savanna et la Plaine Saint Paul, CBo Territoria vous présente le lotissement Ti Polka 2 et vous propose une parcelle de 386m2 viabilisée et prête à bâtir qui n'attend plus que votre future maison. Situé au coeur du Quartier Marie Caze, à proximité du lycée Saint-Paul IV, du CHOR et d... Réf. 757-31L'agence By Cbo 240 000 € soit 622 € /m² a vendre - parcelle viabilisÉe de 310 m2 À marie caze, la plaine saint paul 3 Terrain 310 m² Saint-Paul (97460) terrain 310 m² Entre Savanna et la Plaine Saint Paul, CBo Territoria développe au coeur du nouveau Quartier de Marie Caze, le lotissement Zoiseau Blanc.Découvrez ces parcelles viabilisées et prêtes à bâtir, à proximité du lycée Saint-Paul IV, du CHOR et des commerces de proximité, et devenez propriétair... Réf. 759-17L'agence By Cbo 250 000 € soit 806 € /m² a vendre - parcelle viabilisÉe de 355 m2 À marie caze, la plaine saint paul 2 Terrain 355 m² Saint-Paul (97460) terrain 355 m² Entre Savanna et la Plaine Saint Paul, CBo Territoria développe au coeur du nouveau Quartier de Marie Caze, le lotissement Zoiseau Blanc.Découvrez ces parcelles viabilisées et prêtes à bâtir, à proximité du lycée Saint-Paul IV, du CHOR et des commerces de proximité, et devenez propriétair... Réf. 759-03L'agence By Cbo 240 000 € soit 676 € /m² a vendre - parcelle viabilisée de 299 m2 à marie caze, la plaine saint paul 2 Terrain 299 m² Saint-Paul (97460) terrain 299 m² Entre Savanna et la Plaine Saint Paul, CBo Territoria  développe au coeur du nouveau Quartier de Marie Caze, le lotissement Les Zirondelles. Découvrez ces parcelles viabilisées et prêtes à bâtir, à proximité du lycée Saint-Paul IV, du CHOR et des commerces de proximité, et devenez propriÃ... Réf. 751-17L'agence By Cbo 194 000 € soit 649 € /m²