Préciser votre budget :
OK
Préciser les pièces :
OK
Préciser les chambres :
OK
Préciser la surface :
OK
Préciser la surface :
OK
Plus de critères
Retour aux annonces

A vendre Terrain 313 m² Saint-Paul (97460) - Réunion

270 000 € FAI* soit 863 € /m²
miniature miniature
Empruntez aux meilleures conditionslogo meilleur taux

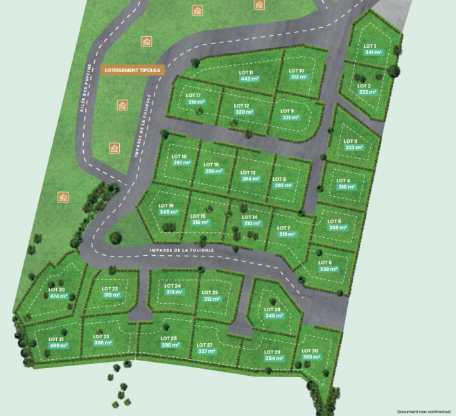
A VENDRE - PARCELLE VIABILISÉE DE 313 M2 À MARIE CAZE, LA PLAINE SAINT PAUL

Entre Savanna et la Plaine Saint Paul, CBo Territoria développe au coeur du nouveau Quartier de Marie Caze, le lotissement Zoiseau Blanc.Découvrez ces parcelles viabilisées et prêtes à bâtir, à proximité du lycée Saint-Paul IV, du CHOR et des commerces de proximité, et devenez propriétaire dans un environnement privilégié et résidentiel de l'ouest.Nous vous proposons cette parcelle de 313 m2 qui n'attend plus que votre future maison.
Prix de vente : 270 000 € FAI TTC Prix net vendeur : 255 353 € TTC Honoraires : 14 648 € TTC à la charge du vendeur
Les informations sur les risques auxquels ce bien est exposé sont disponibles sur le site Géorisques : www.georisques.gouv.fr

Caractéristiques de ce terrain à vendre à Saint-Paul (97460)

  • Surface habitable : 313 m²
  • Surface du terrain : 313 m²
  • Référence de l'annonce : 759-22
  • Prix de vente : 270 000 € FAI (Frais d'Agence Inclus)*
Empruntez aux meilleures conditionslogo meilleur taux

Cette annonce immobilière vous est proposée par :

L'AGENCE BY CBO

97438 Sainte-Marie

Ce bien vous intéresse ?
Contactez l'agence dès aujourd'hui...

En savoir plus sur l'agence L'AGENCE BY CBO

Cette agence immobilière propose à ce jour 95 biens à la vente sur Immodesiles.fr.

Vous pouvez consulter le barème d'honoraires de l'agence.

Autres terrains à vendre à Saint-Paul (97460), susceptibles de vous intéresser

a vendre terrain 300m² centre ville saint paul, ile de la reunion 5 Terrain 1 pièce 300 m² Saint-Paul (97460) 1 pièce, 5 chambres, terrain 300 m² INGAR MOHAMMAD VOUS PROPOSE A VENDRE UN TERRAIN PLAT DE 300M TRS BIEN SITUE DANS LE CENTRE VILLE DE SAINT PAUL , SUR L'ILE DE LA REUNION, PROCHE DE TOUTES COMMODITS. Sur cette parcelle situe en Zone U1C vous pourrez construire jusqu 4 tages + les combles (R+4+ Combles), la totalit du terrain est co... Réf. 6359Teka Immobilier 358 450 € soit 1 195 € /m² a vendre belle parcelle de terrain au calme à saint-paul bois rouge vue mer. 3 Terrain 1012 m² Saint-Paul (97460) terrain 1012 m² OFIM vous propose ce terrain avec une petite maison à démolir,. Idéalement bien placé dans une impasse au calme et vue mer. Ce terrain est situé à Bois Rouge Saint-Paul, à 20 minutes du centre ville de Saint-Paul. Ce terrain d'environ 1012 m2, viabilisé, n'attend plus que votre projet. Fosse... Réf. 763 LPOfim 342 000 € soit 338 € /m² a vendre - parcelle de 273m2 dans le lotissement ti polka à marie caze 3 Terrain 478 m² Saint-Paul (97460) terrain 478 m² Entre Savanna et la Plaine Saint Paul, CBo Territoria vous présente le lotissement Ti Polka 2 et vous propose une parcelle de 3478m2 viabilisée et prête à bâtir qui n'attend plus que votre future maison. Situé au coeur du Quartier Marie Caze, à proximité du lycée Saint-Paul IV, du CHOR et d... Réf. 757-44L'agence By Cbo 385 000 € soit 805 € /m² 311 m2 a vendre - parcelle viabilisÉe de 311 m2 À marie caze, la plaine saint paul 4 Terrain 311 m² Saint-Paul (97460) terrain 311 m² Entre Savanna et la Plaine Saint Paul, CBo Territoria développe au coeur du nouveau Quartier de Marie Caze, le lotissement Les Zirondelles. Découvrez ces parcelles viabilisées et prêtes à bâtir, à proximité du lycée Saint-Paul IV, du CHOR et des commerces de proximité, et devenez propriét... Réf. 751-31L'agence By Cbo 200 000 € soit 643 € /m² a vendre - grande parcelle viabilisée de 347 m2 à marie caze, la plaine saint paul 5 Terrain 347 m² Saint-Paul (97460) terrain 347 m² Entre Savanna et la Plaine Saint Paul, CBo Territoria  développe au coeur du nouveau Quartier de Marie Caze, le lotissement Les Zirondelles. Découvrez ces parcelles viabilisées et prêtes à bâtir, à proximité du lycée Saint-Paul IV, du CHOR et des commerces de proximité, et devenez propriÃ... Réf. 751-19L'agence By Cbo 213 000 € soit 614 € /m²