Préciser votre budget :
OK
Préciser les pièces :
OK
Préciser les chambres :
OK
Préciser la surface :
OK
Préciser la surface :
OK
Plus de critères
Retour aux annonces

A vendre Terrain 217 m² Saint-Pierre (97410) - Réunion

232 000 € FAI* soit 1 069 € /m²
miniature miniature miniature miniature miniature miniature
Empruntez aux meilleures conditionslogo meilleur taux

chez PRMI / Terrain constructible "Quartier pêcheur" Terre-Sainte (97410)

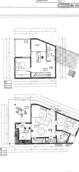
Emplacement très recherché : "Quartier pêcheur" Terre-Sainte ! Résidentiel et calme, proche de la promenade des Alizés, de la plage, des restaurants, des écoles et bien sûr des commerces du centre ville de Saint-Pierre ! Terrain de 217 m2 : plat, nu, à bâtir. Celui-ci bénéficie déjà d'un permis de construire obtenu en 2022. Pour y édifier une maison individuelle de 92 m2 (habitable) de type R+1. Voir plan + photos. -- IDEAL POUR UNE RESIDENCE PRINCIPALE / SECONDAIRE / LOCATION SAISONNIERE -- Informations complémentaires : - borné (via géomètre) - non viabilisé (mais raccordements proches y compris au tout à l'égout) - non clôturé -exposition (nord) ps : pas de copropriété, pas de lotissement et pas de servitude ! Visite possible avec le spécialiste de Saint-Pierre : Arnaud TREMOULET. Tél : [coordonnées réservées] ou [coordonnées réservées] Mail : [coordonnées réservées] Honoraires à la charge du vendeur. Bien non soumis au DPE. Les informations sur les risques naturels auxquels ce bien peut-être exposé sont disponibles sur le site : georisques.gouv.fr

Caractéristiques de ce terrain à vendre à Saint-Pierre (97410)

  • Surface habitable : 217 m²
  • Surface du terrain : 217 m²
  • Référence de l'annonce : 7414AT
  • Prix de vente : 232 000 € FAI (Frais d'Agence Inclus)*
  • * Honoraires à la charge du vendeur
Empruntez aux meilleures conditionslogo meilleur taux

Cette annonce immobilière vous est proposée par :

PRMI Sud/Ouest

Ce bien vous intéresse ?
Contactez l'agence dès aujourd'hui...

En savoir plus sur l'agence PRMI Sud/Ouest

Cette agence immobilière propose à ce jour 64 biens à la vente sur Immodesiles.fr.

Vous pouvez consulter le barème d'honoraires de l'agence.

Autres terrains à vendre à Saint-Pierre (97410), susceptibles de vous intéresser

saint pierre 97410 - parcelle À bÂtir - bon potentiel - bien proportionnÉe - quartier verdoyant 1 Terrain 360 m² Saint-Pierre (97410) terrain 360 m² SAINT PIERRE 97410 - Située en Zone Uf, venez découvrir cette parcelle plate et arborée, à bâtir d'environ 360 m2. Bon potentiel et bien proportionnée, elle ne manquera pas d'attirer votre attention. Située dans un secteur prisé et verdoyant, n'hésitez plus et venez la visiter. À VOIR ! Re... Réf. 24-5139Le Forum Immobilier 115 000 € soit 319 € /m² parcelle viabilisÉe de 283m2 À kaisary - grand bois, saint-pierre 6 Terrain 283 m² Saint-Pierre (97410) terrain 283 m² Découvrez cette parcelle viabilisée et prête à bâtir de 283 m2 située aux portes de Saint-Pierre. Le lotissement Kaisary offre une véritable douceur de vivre aux futurs acquéreurs. Très bien placé dans le quartier de Grands Bois, le lotissement est idéalement placé à proximité d... Réf. 762-07L'agence By Cbo 139 000 € soit 491 € /m² a vendre- st pierre- terrain de 596 m2- proximité des établissement s scolaires. 3 Terrain 596 m² Saint-Pierre (97410) terrain 596 m² A Bois d'Olive, Joli terrain à bâtir dans un quartier résidentiel. Venez découvrir ce terrain constructible de 596 m² . Sa belle superficie vous offrira un confort de vie exceptionnel, idéal pour réaliser la maison de vos rêves avec un grand jardin, une piscine ou un espace de loisirs extÃ... Réf. 109486-Lot2Sunkaz 183 000 € soit 307 € /m² parcelle viabilisÉe de 346m2 À kaisary - grand bois 2 Terrain 346 m² Saint-Pierre (97410) terrain 346 m² Découvrez cette parcelle viabilisée et prête à bâtir de 346 m2 située aux portes de Saint-Pierre. Le lotissement Kaisary offre une véritable douceur de vivre aux futurs acquéreurs. Très bien placé dans le quartier de Grands Bois, le lotissement est idéalement placé à proximité du nouve... Réf. 762-24L'agence By Cbo 168 000 € soit 486 € /m² grands-bois - parcelle viabilisÉe de 390 m2 : kaisary 3 8 Terrain 390 m² Saint-Pierre (97410) terrain 390 m² Vous rêvez de construire votre maison dans le Sud, ou réaliser un investissement locatif sur l’île ? Découvrez Kaisary 3, notre nouveau lotissement situé à Grands-Bois, aux portes de Saint-Pierre. À une dizaine de minutes du centre de Saint-Pierre, avec un accès direct à la voie rapide, ... Réf. 766-22L'agence By Cbo 178 000 € soit 456 € /m²