Préciser votre budget :
OK
Préciser votre budget :
OK
Préciser les pièces :
OK
Préciser la surface :
OK
Préciser la surface :
OK
Plus de critères
Retour aux annonces

A louer Local commercial Saint-André (97440) - Réunion

2 102 € cc / mois*
miniature miniature

A louer local commercial ou professionnel avec parking en centre ville de Saint-André

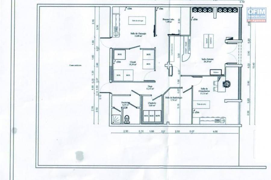
Ofim de Saint-André à le plaisir de mettre à la location ce local de 102 m² environ situé sur l'avenue Ile de France avec 11 m/l de façade avec vitrines donnant sur la rue. Ce local possède 3 place de parking privative + 1 place handicapé. Local au normes ERP et climatisé pour une bonne partie ce local a été agencé à l'intérieur pour une ancienne clinique vétérinaire. A l'arrière une cour privative de 97 m² vient compléter ce descriptif. Très bon emplacement commercial sur axe très passant à proximité immédiate du centre ville. Loyer : 2102,68 € Pour toutes informations ou visites : Jérémie RIVIERE - [coordonnées réservées] 2A71851, Numéro de mandat: 562 Tél. commercial: [coordonnées réservées]

Caractéristiques de ce local commercial à louer à Saint-André (97440)

  • Surface : 102 m²
  • Référence de l'annonce : 562

Cette annonce immobilière vous est proposée par :

OFIM

Ce bien vous intéresse ?
Contactez l'agence dès aujourd'hui...

En savoir plus sur l'agence OFIM

Cette agence immobilière propose à ce jour 88 biens à la vente et 32 biens à la location sur Immodesiles.fr.

Le barème d'honoraires de l'agence ne nous a pas été transmis.

Autres locaux commerciaux à louer à Saint-André (97440), susceptibles de vous intéresser

grand local commercial/ professionnel proximitÉ  du centre ville 2 Local commercial Saint-André (97440) 112 m² Ofim à le plaisir de mettre à la location ce local de 112 m² environ situé sur l'avenue Ile de France. Ce local possède plusieurs places de parking + 1 place handicapé. Actuellement une clinique vétérinaire. A l'arrière une cour privative de + de 90 m² . Ce local bénéficie d’un empla... Réf. 181Ofim 2 102 € cc / mois 3 Local commercial Saint-André (97440) À LOUER : Local commercial neuf à Saint André, ce bien est parfait pour des activités professionnelles telles que des bureaux, des salles de réunion ou des cabinets libéraux. Le local bénéficie d'une bonne superficie, offrant un espace de travail fonctionnel et agréable. Bien que non meub... Réf. GES56700261-542Citya Belvedere 1 100 € cc / mois lakaz société immobilière vous propose en location ce local commercial ou professionnel de 192 m2 idéalement s 4 Local commercial Saint-André (97440) 192 m² LaKaz Société Immobilière vous propose en location ce grand local commercial ou professionnel de 192 m2 idéalement situé au coeur de Saint-André. Ce local comprend un très grand plateau amménageable pour le preneur. Parking sous-sol dédiéLoyer mensuel : 3 000 €Dépôt de garantie (DG) : ... Réf. 2275Lakaz 3 000 € cc / mois a louer local pro/commercial 88m2 - st andré ville 2 Local commercial Saint-André (97440) 88 m² A louer au centre-ville de Saint-André, sur l'avenue de Bourbon, axe très passant local d'une superficie de 88m2 avec vitrine. A aménager selon votre activité, travaux de rafraichissement à prévoir,  disponible immédiatement. Loyer: 2200€ Dépôt de garantie: 4400€ Honoraire d'agence par... Réf. T356GaÏa Patrimoine 2 200 € cc / mois a louer local professionnel de 39.83 m² sur saint andré 2 Local commercial 1 pièce - Terrain 427 m² Saint-André (97440) 1 pièce, 2 chambres, 40 m², terrain 427 m² KLEBERT TEKA IMMO vous propose louer sur Saint-Andr, un local professionnel neuf de 39,83 m2. Il est compos dune pice principale, avec un espace sanitaire.En raison de sa situation sur une rue frquente, vous bnficierez d'une visibilit optimale pour votre activit.\nLoyer mensuel : 1000 , pas de char... Réf. 6502Teka Immobilier 1 000 € cc / mois