Préciser votre budget :
OK
Préciser les pièces :
OK
Préciser les chambres :
OK
Préciser la surface :
OK
Préciser la surface :
OK
Plus de critères
Retour aux annonces

A vendre Terrain 312 m² Saint-Paul (97460) - Réunion

220 000 € FAI* soit 705 € /m²
miniature miniature miniature miniature
Empruntez aux meilleures conditionslogo meilleur taux

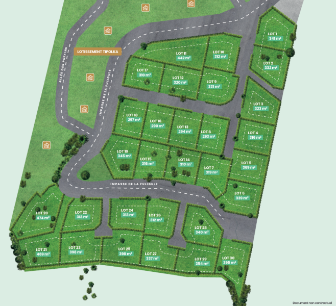
A VENDRE - PARCELLE VIABILISÉE DE 312 M2 À MARIE CAZE, LA PLAINE SAINT PAUL

Entre Savanna et la Plaine Saint Paul, CBo Territoria développe au coeur du nouveau Quartier de Marie Caze, le lotissement Zoiseau Blanc.Découvrez ces parcelles viabilisées et prêtes à bâtir, à proximité du lycée Saint-Paul IV, du CHOR et des commerces de proximité, et devenez propriétaire dans un environnement privilégié et résidentiel de l'ouest.Nous vous proposons cette parcelle de 312 m2 qui n'attend plus que votre future maison.
Prix de vente : 220 000 € FAI TTC Prix net vendeur : 208 065 € TTC Honoraires : 11 935 € TTC à la charge du vendeur
Les informations sur les risques auxquels ce bien est exposé sont disponibles sur le site Géorisques : www.georisques.gouv.fr

Caractéristiques de ce terrain à vendre à Saint-Paul (97460)

  • Surface habitable : 312 m²
  • Surface du terrain : 312 m²
  • Référence de l'annonce : 759-10
  • Prix de vente : 220 000 € FAI (Frais d'Agence Inclus)*
Empruntez aux meilleures conditionslogo meilleur taux

Cette annonce immobilière vous est proposée par :

L'AGENCE BY CBO

97438 Sainte-Marie

Ce bien vous intéresse ?
Contactez l'agence dès aujourd'hui...

En savoir plus sur l'agence L'AGENCE BY CBO

Cette agence immobilière propose à ce jour 95 biens à la vente sur Immodesiles.fr.

Vous pouvez consulter le barème d'honoraires de l'agence.

Autres terrains à vendre à Saint-Paul (97460), susceptibles de vous intéresser

a vendre - parcelle viabilisée de 291 m2 à marie caze, la plaine saint paul 3 Terrain 291 m² Saint-Paul (97460) terrain 291 m² Entre Savanna et la Plaine Saint Paul, CBo Territoria  développe au coeur du nouveau Quartier de Marie Caze, le lotissement Les Zirondelles. Découvrez ces parcelles viabilisées et prêtes à bâtir, à proximité du lycée Saint-Paul IV, du CHOR et des commerces de proximité, et devenez propriÃ... Réf. 751-34L'agence By Cbo 190 000 € soit 653 € /m² a vendre belle parcelle de terrain au calme à saint-paul bois rouge vue mer. 3 Terrain 1012 m² Saint-Paul (97460) terrain 1012 m² OFIM vous propose ce terrain avec une petite maison à démolir,. Idéalement bien placé dans une impasse au calme et vue mer. Ce terrain est situé à Bois Rouge Saint-Paul, à 20 minutes du centre ville de Saint-Paul. Ce terrain d'environ 1012 m2, viabilisé, n'attend plus que votre projet. Fosse... Réf. 763 LPOfim 342 000 € soit 338 € /m² parcelle de terrain avec vue mer à saint-paul 1 Terrain 349 m² Saint-Paul (97460) terrain 349 m² Belle parcelle de terrain de plus de 300 m², idéalement située à mi-hauteur de Saint-Paul, avec une vue mer exceptionnelle, offrant un cadre agréable et proche de toutes commodités. Ce terrain se trouve en zone Uc6, permettant une construction en R+1+combles avec une hauteur maximale de 9 mèt... Réf. 2852Outremer Immobilier 96 848 € soit 278 € /m² terrain a batir 1 Terrain 1289 m² Saint-Paul (97460) terrain 1289 m² Terrain Constructible avec Vue Dégagée - Un Cadre de Vie IdéalDécouvrez ce terrain constructible de 1289 m², niché dans un environnement paisible et offrant une vue dégagée qui vous coupera le souffle. Imaginez-vous construire votre maison de rêve sur cette parcelle en pente, où chaque ang... Réf. 2468-ARHArh Immobilier 248 400 € soit 193 € /m² a vendre - parcelle viabilisÉe de 313 m2 À marie caze, la plaine saint paul 2 Terrain 313 m² Saint-Paul (97460) terrain 313 m² Entre Savanna et la Plaine Saint Paul, CBo Territoria développe au coeur du nouveau Quartier de Marie Caze, le lotissement Zoiseau Blanc.Découvrez ces parcelles viabilisées et prêtes à bâtir, à proximité du lycée Saint-Paul IV, du CHOR et des commerces de proximité, et devenez propriétair... Réf. 759-22L'agence By Cbo 270 000 € soit 863 € /m²